top of page

Atelier Expression
Plus que de l'architecture. Des espaces à vivre.
Mission
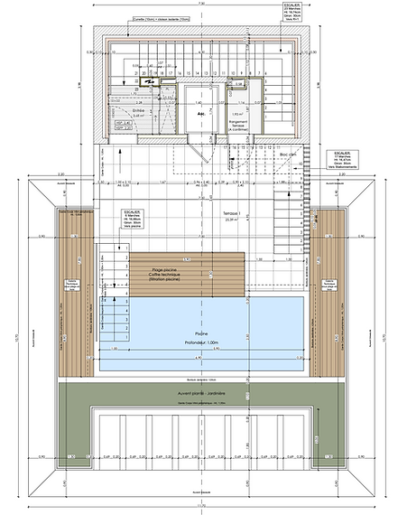
Dossier de consultation des entreprises et exécution des travaux pour ces six villas de 121m2 chacune à Mandelieu avec piscine sur le toit.




Le Six - Mandelieu
Vision
Ce projet sur les hauteurs, impose, comme beaucoup de projets dans le 06, de travailler la construction dans la pente naturelle du site.Ce système engendre une mise en oeuvre importante au niveau structurelle et sismique sans impacter le rendu architectural.




bottom of page